Skip to main content
As I See it - Architecture
Search
Search This Blog
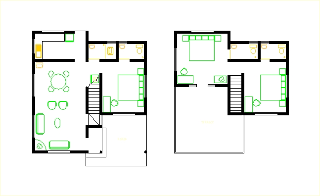
3 Bedroom Villas (18 Plans)